
Внутренняя отделка
Монтаж панелей осуществляется с помощью монтажных профилей W+п, W+T, Н F, L - вида.
Порядок, в котором выполняются различные операции, в значительной мере зависит от каждого отдельного помещения и предлагаемого архитектурного проекта. Поэтому предлагаемый ниже порядок рассматривается как один из частных случаев с часто встречающимися элементами отделки.
Перед креплением стального каркаса следует убедиться, что пол чистый. Отмечается линия стены или линия направляющего лотка. Направляющий лоток крепится к полу и потолку саморезами с интервалом 400 мм и для увеличения длины соединяется в стык. Для обеспечения звукоизоляции между полом и лотком прокладывается полоса пористой резины толщиной 3-4 мм. При использовании в качестве плинтуса L-профиля первоначально настилается напольное покрытие и аккуратно застилается листовым материалом (плитами ДВП и полиэтиленом). Монтаж лотка с заранее установленным L-профилем осуществляется непосредственно на чистовой пол, в этом случае звукоизолирующая прокладка может не устанавливаться.
В углах направляющие лотки монтируются с расстоянием 17-22 мм для того, туда можно было пропустить СМЛ. При использовании L-профиля в качестве плинтуса он стыкуется вплотную друг к другу.
Направляющий лоток потолка устанавливается при помощи уровня или отвеса.
Чтобы сгладить допуски по высоте помещения, стойки каркасов берутся на 10-15 мм ниже номинальной высоты помещения.
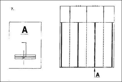
Стойки вставляются между направляющими пола и потолка и вкручиваются в нужное положение. Установка несущих стоек осуществляется с шагом 1,2 м. При расстановке стоек необходимо учитывать толщину стыковочного профиля (W+п, W+T или H). Опорные стойки устанавливаются, посередине, между несущими. Опорная стойка может не устанавливаться в случае, когда расстояние между несущими стойками не более 0,6 м.
Стойки к лоткам крепятся с помощью самонарезающих шурупов типа LI13 для листового материала, заклепок или профилирующих щипцов.
В местах установки дверных блоков в стойки устанавливаются деревянные закладные бруски, или эти стойки монтируются из двух асимметричных стоек, при этом рекомендуется нижний лоток отогнуть на 150 мм наверх для создания опоры.
Для увеличения жесткости каркаса стойки крепятся к стене с помощью специальных конвертов, которые устанавливаются через 1,2 - 1,5 м.
При монтаже каркаса с высотой большей, чем высота панели между стойками устанавливаются дополнительные перекладины из того же металлопрофиля.
В местах, где устанавливается перегородка, монтируются дополнительные стойки, либо устанавливаются деревянные закладные бруски.
Для улучшения тепло- и звукоизоляции в металлокаркас вдоль стен и перегородок устанавливается минеральная вата толщиной 50 или 100 мм или другой наполнитель.
Выставленный металлокаркас зашивается панелями ЭСКАПЛАТ™. Готовые листы поднимают и прижимают к каркасу. Если в качестве плинтуса используется L-профиль, то панель предварительно вставляется в технологический паз L-профиля и крепится к каркасу с помощью W или H - профиля, заранее нарезанного в необходимую длину. Для удобства установки панели в L-профиль рекомендуется использовать шпатель 150-200 мм. W - профиль предварительно закручивается не до конца, позволяя установить второй соседний лист, и только после его установки W - профиль обжимается до упора. В качестве крепежа используется самонарезающие саморезы S8142-25. Технологический паз W - профиля с саморезами закрывается декоративной заглушкой или крышкой.
При монтаже панелей на стены высотой больше высоты листа, монтаж осуществляется с помощью дополнительной поперечной раскладки. При монтаже листов рекомендуем использовать предложенную ниже схему.
Монтаж панелей следует начинать от установленных оконных и дверных блоков или с зашивки внутренних и внешних углов. Ниже приводятся наиболее часто встречающиеся варианты оформления этих элементов.
Для монтажа перегородок рекомендуется использовать 66 профиль, тогда толщина перегородки будет соответствовать толщине дверной коробки, а сама коробка дополнительно крепится с помощью W - профиля по периметру. Вместо омега - профиля устанавливаемого по периметру коробки можно использовать любой типовой наличник.
Примыкание перегородок к существующим стенам осуществляется с помощью L-профиля
Для улучшения теплозвукоизоляционных свойств и повышения прочностных характеристик можно использовать двойную зашивку стен, где в качестве первого слоя используются обычные панели из ГКЛ, которые крепятся к металлокаркасу с помощью саморезов S25F. Для крепления W - профиля используются в этом случае саморезы S8142-32. При таком монтаже необходимо следить, чтобы крепеж W - профиля приходился не на стык панелей из ГКЛ.
В последнее время часто стали использовать перегородки в помещениях, идущие не на всю его высоту. Также перегородки рекомендуется монтировать на высоком 95 профиле. Особенностью крепления верхнего F-профиля является то, что он крепится саморезами только в местах, где устанавливается W или H - профиль.
Небольшие, легкие предметы могут легко крепиться к панелям ЭСКАПЛАТ™. В данном случае крепеж осуществляется через стандартные элементы, которые используются при монтаже панелей, дюбели типа TPD, TMX, TPN и другие.
В помещениях с хорошим качеством стены или при ограниченной площади помещений можно монтировать панели непосредственно на стену без металлокаркаса. В этом случае производится разметка стены и установка деревянных маяков там, где есть в этом необходимость непосредственно под W или H - профиль, F и L - профиль через 400 - 600 мм. Крепление профилей осуществляется непосредственно к маякам или стене. При неровности стен до 20 мм можно монтировать панели с помощью различных строительных клеев, таких как «Жидкие гвозди», «Монтажная пена» и др. Клеевые составы наносятся небольшими кучками вдоль панелей с интервалом 35 см и по периметру с минимальным интервалом. Но данные способы крепления являются не являются технологичными и достаточно трудоемки, поэтому их следует использовать в случае крайней необходимости. Такие способы монтажа также приводят к ухудшению звукоизолирующих свойств, вследствие образования узкого воздушного пространства, которое может резонировать.
Потолочный пристенный кант крепится непосредственно к стойкам через 0,6 или 1,2 м. При монтаже подвесного потолка необходимо следить, чтобы потолочные направляющие там, где возможно совпадали с вертикальным W или H - профилем.
В случае использования гипсокартонного потолка для обеспечения качественного подхода панели к потолку, мы советуем по верху краю панелей устанавливать L - профиль. Причем работы по монтажу панелей должны начинаться после полного завершения работ с потолком.
Также можно устанавить Негорючие потолочные плиты ЭСКАПЛАТ™ между направляющими подвесного потолка.
При заранее определенной высоте потолков целесообразно использовать пристенный «теневой» кант, который устанавливается до монтажа панелей. В этом случае верх панели вставляется в образовавшийся технологический паз и прижимается в дальнейшем W - профилем.
Если соединение с полом выполнено без использования L-профипя и в качестве плинтуса используется накладной плинтус HDM, ПХВ или кабель-канал, то он крепится к панелям с помощью клея.
Для прорезки отверстий под специальные установочные элементы используется регулируемая круговая дрель или специальный резак.
Для нарезки направляющего лотка и стоек используются ножницы по металлу, ножовка или специальный резак.
Для нарезки панелей рекомендуем использовать обычную ножовку, либо специальную обрезную машину. Для прорезки небольших участков можно использовать «МАСТЕР-НОЖ».
Для нарезки профилей W+п, W+T, H, F, L рекомендуем использовать ножовку по металлу.